3D Cabinet Design:
Bring your design ideas to life!

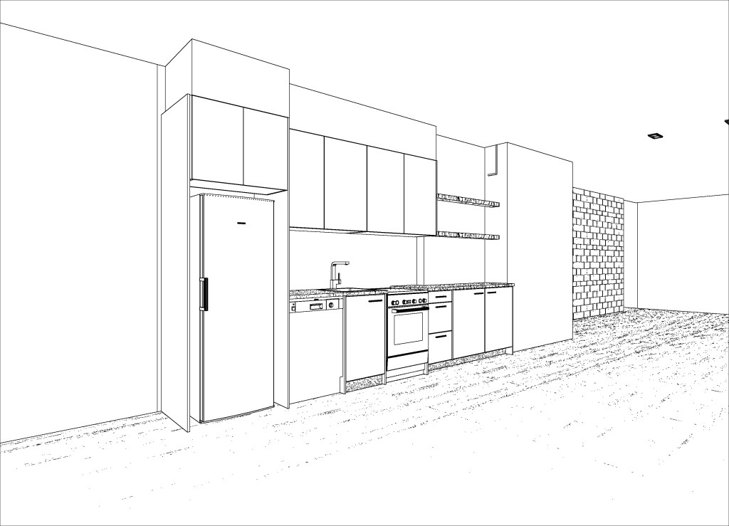
Do you want to visualise your design ideas and finishes for your new kitchen bathroom laundry or wardrobes? Get those ideas of that piece of paper and into a visual reality. And as we are experienced kitchen and bathroom designers, we can help ensure that the cabinetry is the right sizes for your appliances and fixtures to ensure we produce the mosr realistic images for you.
Our software enables us to produce sketches that help you identify the essential detail that will make your decisions easier in your planning stage.


Plans
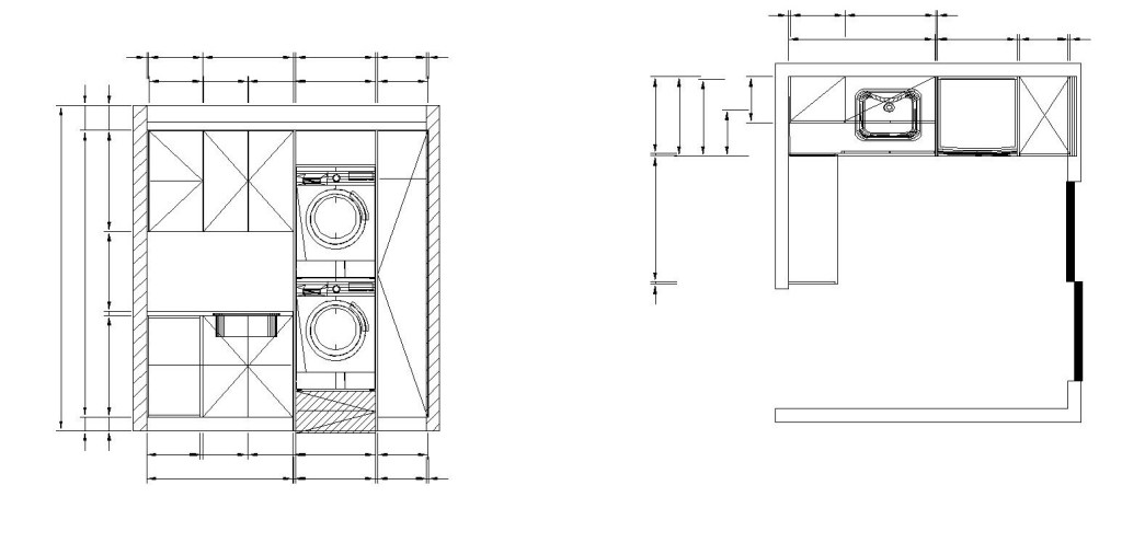
We will provide you with plans that you can give straight to your trades people or your clients, that they can work off to make your designs a reality.

Package 1
$385.00 incl GST
3 x 3D Images 3 x Wireframe Sketches from images
Per Room
package 2
$385.00 incl GST
Plans and Elevations with measurements
Per Room
COMBO
$660.00 incl GST
Package 1 and Package 2 Combined
Per Room


















